在一個只有28平方米的房間里,空間狹小,很難滿足現代一家三口的居住需求,在這種環境下衛生間、廚房、臥室都成為了改造的難點,如何妥善處理這些問題成為了許多設計師的探究對象。其實改造不難,滿足以下幾點,小小的一個陋室也可以變成另一番新模樣。
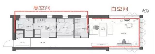
1、“黑、白”空間理論

其核心就是對于空間中人的活動(activity)的重視,不僅包括人在其中的位移,還有人在其中進行的工作和生活。黑空間只承擔單一功能,白空間則靈活多樣,可能隨不同需求、時段轉換不同功能。
2、廚房壁柜

廚房雖小,但是定制的廚房壁柜將一個廚房的所有功能都完善地呈現出來。
3、露臺

一個狹小的臥室、衣帽間兼儲物間是這一代年輕人對房價做出的妥協。只需要滿足基礎功能即可。 露臺部分自然而然成為了房間的白空間,兼具了餐廳、客廳、書房的功能。
4、三面大開窗

三面大開窗,讓整個房間都變得通透明亮。在墻上用板材打造一個書架兼展示柜,解決了儲物空間和美觀的兩大問題。
5、面板

小空間相比大的空間來說,空氣流動性可能會差一些,如果你也是小戶型,一定要嚴格把握家裝材料,一旦材料散發甲醛,相對閉塞的小戶型,就顯得束手無策。一個環保的家裝材料,從源頭杜絕家裝污染,給你一個純凈的空間。這一代年輕人,已經輸給了房價,不要再輸給了健康。
簡單的改造一下,不僅節約了大量的空間,還能在有效的時間里經濟利益雙豐收。大膽的嘗試一下裝修新風格,輕輕松松就能給自己改造出一片新天地,大家快來試試!
