同樣是裝修,他家的藝術混搭特別有范兒

混搭風格講究一個“搭”字,設計需多方協調,完美融合,可是真能把混搭“搭”到一定境界的,還真是少。
同樣是混搭,他卻特別出彩,來看看這次維享家小編推薦的藝術混搭案例。

使用面積:80㎡
裝修花費:9萬
裝修時長:4個月

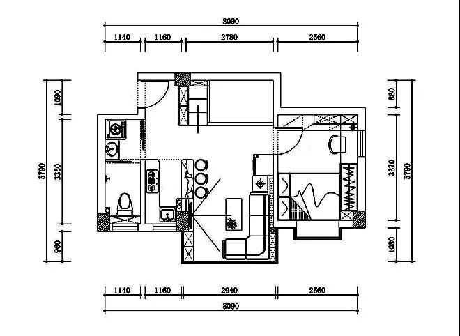
// 平面戶型圖 //

- 客廳 -
更適合年輕人的復古混搭風,不拘一格,強烈的顏色碰撞,撞出了小宇宙的爆發,混搭出不一樣的風土人情。


厭倦了白墻,就換上更具工業氣息的的磚墻,運用在客廳,在配上現代簡約風格家具與美艷的色彩。就很贊啦。
-餐廳-
開放式廚房設計,餐廳與廚房相連,超大強勁吸油煙機助力,無懼油煙侵擾。


看起來是溫馨的暖色調,卻大面積運用了混凝土和金屬家具,特別是那三盞極具現代工業風的吊燈,超酷的!


巧用風格元素的同時,更注重色彩搭配,明亮而高純度的藍,增添一分浪漫,一分清爽。
-臥室-
自古紅藍出CP,紅與藍色撞色就非常值得期待了,主臥墻面以大紅色為主,配以藝術裝飾畫,床主色湖藍,以灰色抱枕搭配,非常搶眼。


如果說湖藍是浪漫的代表,那兒童房的深藍更多的則是文靜而深邃,像知識的海洋。

為了避免沉悶,特別設計了儲物柜,為孩子擺上各色玩具,顏色不多,卻充滿童趣。
-衛生間與陽臺-
衛生間做了明顯的功能分區,將干濕分開,淋浴以玻璃門做格擋,增加門沿,避免水濺入。
出衛生間,配備洗手臺,全木結構,環保性高,易于打理。


陽臺以實用性為主,半封閉式設計,沒有花哨的裝飾,配備洗衣機,方便日常使用。
這些看似簡單
卻深深烙著巧妙靈感的設計
才是真正用心
且符合現代人生活的好設計
如果你也喜歡這樣的設計
歡迎來維享家裝飾
設計師將為你量身定制理想家裝
現在預約還有豪禮相送哦!
