維享家工地 | 隨性北歐風【嘉悅江庭】——驗收篇

為每個家認真
是維享家對裝修的承諾
十四年的匠心沉淀獨創行業領先工藝
專業化指導,標準化施工
讓每一個細節里都有說服力

今天為大家介紹我們的在線工地
【嘉悅江庭】小區的房子
水電、泥木驗收階段全程直播

嘉悅江庭設計風格為隨性自然——北歐風,業主喜歡北歐的那份簡單清爽,希望有一個即有質感又充滿生機的家。
裝修部分基本完工,目前等著家具進場,以下是前后對比圖。
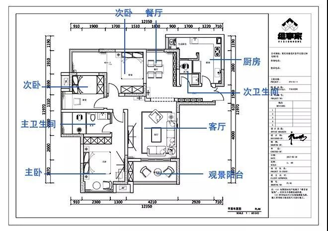
//戶型檔案//
項目名稱:嘉悅江庭
項目面積:105平米
裝修預算:11.8萬
主創設計:V.F/程小彬
裝修風格:北歐
樓盤信息:嘉悅江庭位于悅來會展城西南側,距離國博中心約700米,東南側緊鄰會展大橋,東側緊鄰規劃的張家溪生態公園,西側為嘉悅大橋。
三室二廳二衛的戶型,面積較大,設計師為其做了明確的功能分區,對臥室做了較大的改動,讓空間分布更趨于合理化。

// 平面戶型圖 //


// 工地情況//

▲(維享家實拍對比圖)
開工前對入戶門及樓道墻地面、強弱電箱、分水器、燃氣表進行入場保護,進場第一時間粘貼保護膜對原有成品保護,防止后期施工磨損原有成品。
如今驗收階段,拆掉保護層,煥然如新。
#水電驗收

標準化施工,所有線路排列整齊統一。


整體線路走向清晰明了,強電、弱電線管分色,分別用紅色與藍色進行區分,管路排列為直線的部分,都用彈線施工,以保證直線走向,有彎管的部分,弧度保持統一。
零線與火線在同一平面時,平行間距大于100mm,防止線路干擾。



專用生態綠色地固,針對地面抹灰層進行固化。
優點:
-
防止起塵沙;降低室內粉塵及可吸入物;
-
減少粉塵對飾面污染;
-
增強與裝飾材料的結合力,較少空鼓和起層等。
-

綠色的部分為給水管(PP-R管),維享家統一使用北歐進口品牌芬馳。給水管在頂面通過吊卡固定,在彎道和終端位置增設固定,確保整齊牢固。
#泥木驗收

墻地磚、防水層、陽臺、門窗、地腳線、輕鋼龍骨吊頂、隔斷墻、櫥柜、燈等的安裝施工都已完成,做工精致,整潔而細膩。
地面平整無誤差、無明顯縫隙、型號統一,無色差。

墻的表面平整、光滑,無錘印、無污染、棱角分明。(圖片全是現場真實效果,無任何濾鏡)

臥室采用強化木地板,木紋清晰,色澤光良,均勻一致,接縫整齊、無明顯縫線和粗細不均。
門窗套、窗簾盒等接縫緊密,緊貼于墻面,不留縫隙。

衛生間鋪有防水層,防水層施工完畢進行蓄水試驗,避免出現漏水現象,目前衛生間的配套設施已90%趨于完整,干濕區分明,功能明確,只要加上窗簾、浴簾、毛巾、和各種日用品就可以使用了。
維享家裝飾——【嘉悅江庭】
裝修現場報道
全原創實拍
所有工地開放中
可隨時預約參觀!!!
