金陽第一農場室內設計全案題案
導讀:全案設計流程 別墅舒適四部曲 建筑結構 硬裝結構 配飾設計 園林設計 設計維度四部曲





環保

人文科技

藝術
燈光設計解析



設計思路概念/名詞發想
生活→情感→健康→品味→展示→放鬆
人文→樂趣→茶道→藝術→美學→文化 自然→光影→安靜→五行→生態→呼吸
項目概況

金陽第一農場
項目位置:重慶市沙坪壩大學城南二路1001號
建筑類型:聯排別墅、小高層
物業類別:住宅、別墅
物業管理費:住宅:3元/m²/月
別墅:4.5元/m²/月
建筑結構: 非框剪結構
建筑類型: 聯排別墅、小高層 戶型:2室戶型、3室戶型、別墅
物業公司:重慶金陽騎龍山莊物業管理有限公司
樓盤特色:廣場、商場、湖景、剛需房 開發商:重慶南恒置業有限公司
占地面積:168000平方米
建筑面積:280000平方米
容積率:1.69
綠化率:30%
停車位:共規劃有500個車位
樓棟總數:104棟
總戶數:1919戶



設計思路概念/名詞發想
戶型分析/設計解析

地下二層設計規劃——動線分析

品味、放松、生態、光影、儲物

地下一層設計規劃——動線分析

休閑、功能、健康、生活

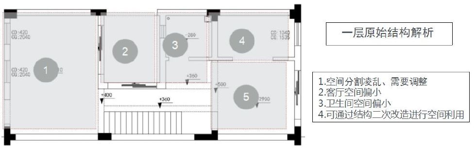
一層設計規劃——動線分析

呼吸、功能、健康、生活、情懷

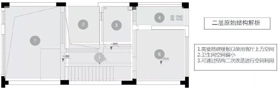
二層設計規劃——動線分析

呼吸、健康、樂趣、五行、美學

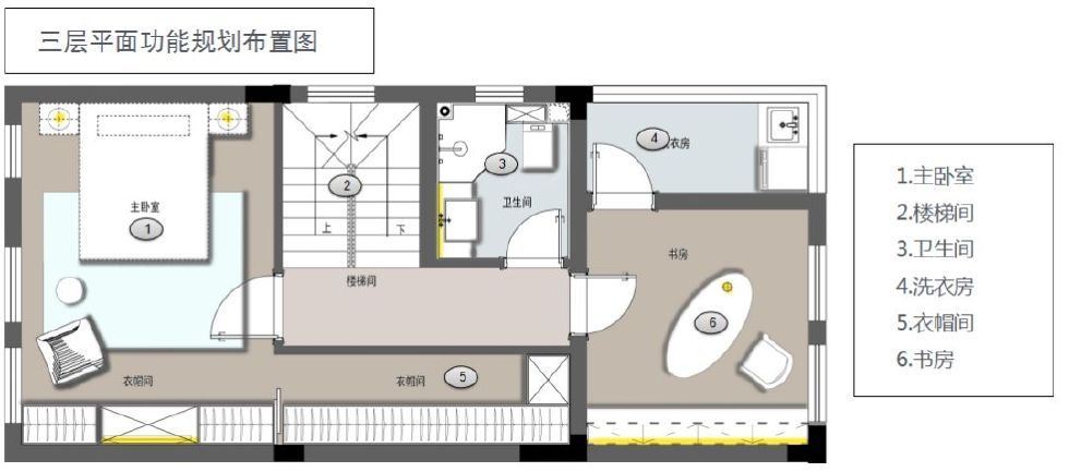
三層設計規劃——動線分析

呼吸、健康、樂趣、五行、美學
分空間展示
靈感來源


當煙粉遇上高級灰,穿越的現代家居灰藍色、灰綠色、杏色,“莫蘭迪色”用得真心讓人服氣,被嬪妃們穿在身上的顏色中,最出眾的莫 過于煙粉了。
顏色解析

不甜不膩冷暖適宜
借鑒了時尚圈套各大牌的服裝設計:Fendi.Celine和 Chanel。
空間展示





一層設計規劃——動線分析

呼吸、功能、健康、生活、情懷

二層設計規劃——動線分析

呼吸、健康、樂趣、五行、美學

三層設計規劃——動線分析

呼吸、健康、樂趣、五行、美學
分空間展示
靈感來源


當煙粉遇上高級灰,穿越的現代家居灰藍色、灰綠色、杏色,“莫蘭迪色”用得真心讓人服氣,被嬪妃們穿在身上的顏色中,最出眾的莫 過于煙粉了。
顏色解析

不甜不膩冷暖適宜
借鑒了時尚圈套各大牌的服裝設計:Fendi.Celine和 Chanel。
空間展示




客廳:
巧妙地在客廳將煙粉與灰結合,利用地板與水泥材質本身的灰色,自然不做作,煙粉只作為四面墻中的一面出現,不用大費周章,空間也具有多樣的美感。




餐廳:
采用深灰與煙粉拼接的方式 ,讓空間更具設計感與美感。




浴室:
將煙粉與灰色按1:1的比例分配到浴室的墻上、水泥材質讓顏色發揮出極強的質感。少許黑色與原木色作為調劑,讓空間具有一種雅痞氣質。




臥室:
在煙粉與灰的搭配中,我們也可以在同一空間使用多種材質與紋理的效果比單調的統一更有趣,也滿足在家中創作的欲望。
空間意向圖
采用深灰與煙粉拼接的方式 ,讓空間更具設計感與美感。




浴室:
將煙粉與灰色按1:1的比例分配到浴室的墻上、水泥材質讓顏色發揮出極強的質感。少許黑色與原木色作為調劑,讓空間具有一種雅痞氣質。




臥室:
在煙粉與灰的搭配中,我們也可以在同一空間使用多種材質與紋理的效果比單調的統一更有趣,也滿足在家中創作的欲望。
空間意向圖




上一篇:
生日快樂丨我們不期而遇
熱門文章
更多 >>
