「北歐極簡」江山樾室內設計概念方案
導讀:北歐極簡歐風格就是簡化了的歐式裝修風格。也是目前住宅別墅裝修最流行的風格。北歐極簡風格更多的表現為實

北歐極簡
Nordic minima
與其說是與生俱來的優雅和低調,不如說是極簡的靜謐。
Part. 1項目概況
Project overview

江山樾
由東原與旭輝聯合打造, 項目據守兩江都市圈腹地, 立于重慶大竹林高端純墅區,占地近500畝。
臨近軌道6號線及金州大道黃金十字,依托先期呈現的高家花園復線橋、大竹林大橋。
占地面積:325619平方米
建筑面積:636000平方米
容積率:1.95
綠化率:30%
停車位:共6760個機動車位。
物業公司:新東原物業有限管理公司物業費:5.20元/㎡·月
物業費描述:別墅物業費為5.2元/平米.月
樓層狀況:項目共計24棟。該項目共有5198戶,均為3層。
Part.2 設計師簡介
Designer profile

劉瀛
重慶公司首席設計師
設計理念:設計源于生活、服務于生活;設計師可以不懂軟件,絕不能不懂生活。
代表作品:金科九曲河、融創玫瑰園、兩江新宸、紫檀莊園、保利高爾夫、棕櫚泉山頂別墅
Part.3 現場勘查
Site survey


戶型:疊上
Part. 設計概念
Design concept


北歐極簡主義是一種生活以及藝術上的風格,本義為追求極致簡約的呈現效果,并且不接受任何違反這一形態的任何事物。設計師之所以對極簡有加,與其說是源于其與生俱來的低調和優雅,不如說是極簡的靜謐氣質,剛好與他們渴求安靜的內心引起了強烈的共鳴。
Part.5 設計元素
Design elements

光 light & 布 cloth & 木 wood


Part.6 藝術品&陳設&家具
Part.7 戶型分析
Household type analysis

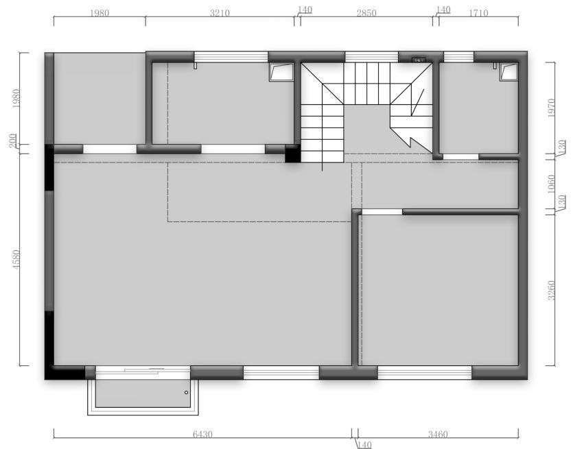
一樓原始圖 Plan
優點:
1.戶型較方正
2.通風采光極好
3.功能齊全
缺點:
1.廚房較小
2.無景觀花園

一樓方案圖 Plan
一樓總面積:63.98 ㎡
設計實測面積:226㎡

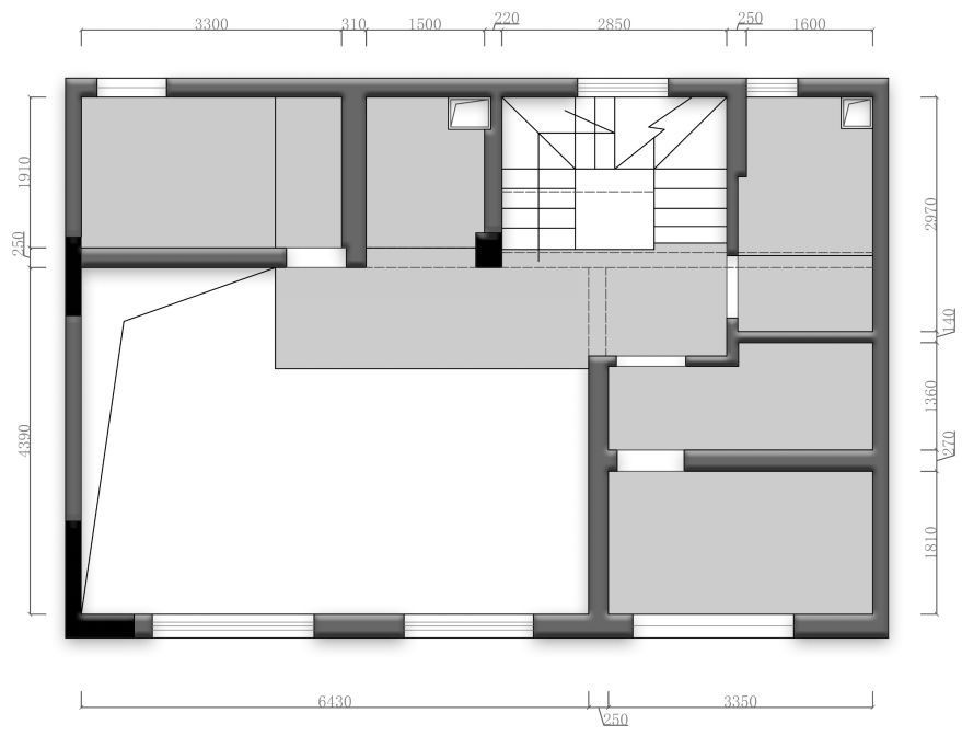
二樓原始圖 Plan
優點:
1.挑控層價值大
2.通風采光極好
缺點:
1.房間面積較小
2.無觀景陽臺

二樓方案圖 Plan
二樓總面積:61.42 ㎡
設計實測面積:226㎡

三樓原始圖 Plan
優點:
1.戶型較方正
2.通風采光極好
缺點:
1.可改動面積小

三樓方案圖 Plan
三樓總面積:42.31 ㎡
設計實測面積:226㎡

四樓方案圖 Plan
四樓總面積:37.91㎡
設計實測面積:226㎡
Part.8 意向圖
Moods






設計便是造物活動進行預先的計劃,可以把任何造物活動的計劃技術和計劃過程理解為設計。并按照任務的目的和要求,
預先定出工作方案和計劃,繪出圖樣。
上一篇:
裝修必看系列之5個常見家裝誤區
下一篇:
九月丨夢想家-佳惠天下 動員大會
熱門文章
更多 >>
