保利江上明珠設計預案
導讀:宜設而設,精在體宜、刪繁去奢,繪事后素、因景互借

保利江上明珠·現代中式

地理位置:重慶市江北區觀音橋
占地面積:約895畝
建筑面積:約125萬方
建筑類型:別墅、洋房、高層、超高層
開發商:保利(重慶)投資實業有限公司
設計師簡介

主任設計師:歐鳳
設計理念:設計是永恒的,在經過很長一段歲月后仍然具有耐看的質感,放心把房子交給我,用我的專業還您一個完美、溫馨的家。
意向參考

【瑤階曙,金盤露。鳳髓香和煙霧。三千珠翠擁宸游,水殿按涼州。】
— 夏竦 —
案例一



整體意向參考

現代中式風格誕生于中國傳統文化復興的新時期,伴隨著國力增強,民族意識逐漸復蘇,人們開始從紛亂的“摹仿”和“拷貝”中整理出頭緒。
電視墻柜子參考

在探尋中國設計界的本土意識之初,逐漸成熟的新一代設計隊伍和消費市場孕育出含蓄秀美的新中式風格。
景觀陽臺參考

在中國文化風靡全球的現今時代,中式元素與現代材質的巧妙兼柔,明清家具、窗欞、布藝床品相互輝映,再現了移步變景的精妙小品。
餐廳背景墻參考

書房背景墻參考

主衛參考

主臥參考

老人房參考

兒童房參考

繼承明清時期家居理念的精華,將其中的經典元素提煉并加以豐富,同時改變原有空間布局中等級、尊卑等封建思想,給傳統家居文化注入了新的氣息。
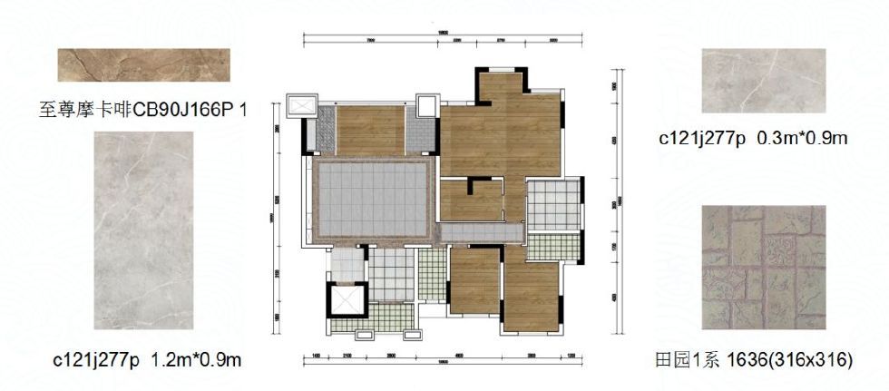
主材類

地板

衛浴



套裝門

定制衣柜
上一篇:
自裝房設計要點,裝前必看!
下一篇:
新房廚房裝修主材如何選購?
熱門文章
更多 >>
