喜馬拉雅4房|極素現代風格裝修
導讀: 重慶裝飾公司俏業家作為全案設計領先品牌,特別采用“總監負責、主案實施、助理協助”的團隊設計服務模式
重慶裝飾公司俏業家作為全案設計領先品牌,特別采用“總監負責、主案實施、助理協助”的團隊設計服務模式,為你的新家集思廣益,個性定制私享空間,打造新房精品工程。本實景案例是重慶俏業家裝飾設計師為陽光100喜馬拉雅的4房戶型專門打造的極素現代風格裝修案例。
——重慶陽光100喜馬拉雅案例內容詳情——
樓盤:重慶陽光100喜馬拉雅
區域:重慶市南岸區下石浩路千佛寺附近
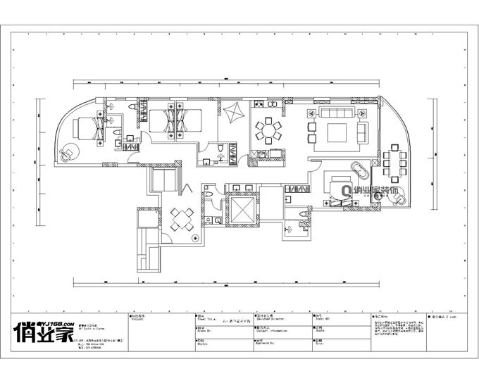
面積:218平
戶型:4房
裝修風格:現代風格
設計總監:楊佼佼
【一鍵直達】客廳 餐廚 臥室1 臥室2 臥室3 臥室4 過道
【業主需求】
民宿裝修設計項目,第一是保留更多的臥室,最好是套房;第二要有個性的設計感,能成為“名片”一樣的耀眼。
【設計靈魂】
利用原建筑的優勢,減少設計繁復手法,通過材質和色彩的極致運用,平衡空間的的關系,賦予設計靈魂和質感。

【細節刻畫】
1、客廳裝修:頂面保留了喜馬拉雅建筑的原始頂,粗獷之余又帶有loft的自由和前衛。地面則采用的是啞光水泥漆,質樸的效果與頂面的樣式和諧統一。大氣簡約的硬裝造型伴隨著不同深淺的灰色充盈著整個空間,以中性的姿態給人絕對的都市時尚感!


2、餐廚裝修:民宿裝修較家庭裝修更追求“享受”!所以,餐廳分為主次兩個餐廳。主餐廳位處景觀陽臺,坐擁無敵江景。次餐廳與廚房共用空間,十分實用便捷。


3、臥室套房1裝修:房間全落地窗環繞,是這個房間的最大優勢,視野開闊無遮擋。Ins風綠植墻紙,圖案簡單卻帶有治愈性,搭配臟粉大窗簾,讓空間充滿生機,連陽光也變得活潑,幸福感滿滿爆棚!



4、臥室套房2裝修:溫潤質樸的風格同樣打動人心,床頭背景選擇有“山城”之意的水墨畫壁紙,精致時尚的床頭燈、平滑木料的床頭,以及輕盈布藝窗簾…… 質感不同的元素在這里演繹出內斂輕松的氛圍感。


5、臥室套房3裝修:湖綠色的乳膠漆背景墻+木色飾面板,時尚與復古相結合,床頭的軟包讓舒適性直線上升,放下奔走一天的疲憊。造就當代快節奏生活里的一點小愜意。


6、臥室套房4裝修:兒童房分為兩個功能區(休息+娛樂),二進空間既滿足小朋友的活力,又能滿足空間設計感,而且用色青春亮麗,獲得了更為簡約高級的視覺效果。


7、過道裝修:走廊都有屬于自己的獨特風景,角落的休閑空間,Ins風撲面而來,個性的墻面裝飾,凸顯出空間的年輕、時尚氣息。


看到這里,是不是有些了解極素現代風格裝修,免費獲取俏業家裝飾設計大咖同款設計,請電話報名:400-168-6906。
——重慶陽光100喜馬拉雅案例內容詳情——
樓盤:重慶陽光100喜馬拉雅
區域:重慶市南岸區下石浩路千佛寺附近
面積:218平
戶型:4房
裝修風格:現代風格
設計總監:楊佼佼
【一鍵直達】客廳 餐廚 臥室1 臥室2 臥室3 臥室4 過道
【業主需求】
民宿裝修設計項目,第一是保留更多的臥室,最好是套房;第二要有個性的設計感,能成為“名片”一樣的耀眼。
【設計靈魂】
利用原建筑的優勢,減少設計繁復手法,通過材質和色彩的極致運用,平衡空間的的關系,賦予設計靈魂和質感。

【細節刻畫】
1、客廳裝修:頂面保留了喜馬拉雅建筑的原始頂,粗獷之余又帶有loft的自由和前衛。地面則采用的是啞光水泥漆,質樸的效果與頂面的樣式和諧統一。大氣簡約的硬裝造型伴隨著不同深淺的灰色充盈著整個空間,以中性的姿態給人絕對的都市時尚感!


2、餐廚裝修:民宿裝修較家庭裝修更追求“享受”!所以,餐廳分為主次兩個餐廳。主餐廳位處景觀陽臺,坐擁無敵江景。次餐廳與廚房共用空間,十分實用便捷。


3、臥室套房1裝修:房間全落地窗環繞,是這個房間的最大優勢,視野開闊無遮擋。Ins風綠植墻紙,圖案簡單卻帶有治愈性,搭配臟粉大窗簾,讓空間充滿生機,連陽光也變得活潑,幸福感滿滿爆棚!



4、臥室套房2裝修:溫潤質樸的風格同樣打動人心,床頭背景選擇有“山城”之意的水墨畫壁紙,精致時尚的床頭燈、平滑木料的床頭,以及輕盈布藝窗簾…… 質感不同的元素在這里演繹出內斂輕松的氛圍感。


5、臥室套房3裝修:湖綠色的乳膠漆背景墻+木色飾面板,時尚與復古相結合,床頭的軟包讓舒適性直線上升,放下奔走一天的疲憊。造就當代快節奏生活里的一點小愜意。


6、臥室套房4裝修:兒童房分為兩個功能區(休息+娛樂),二進空間既滿足小朋友的活力,又能滿足空間設計感,而且用色青春亮麗,獲得了更為簡約高級的視覺效果。


7、過道裝修:走廊都有屬于自己的獨特風景,角落的休閑空間,Ins風撲面而來,個性的墻面裝飾,凸顯出空間的年輕、時尚氣息。


上一篇:
介紹幾種適合兒童房的裝修顏色
下一篇:
一份裝修平面布置方案,你應該看什么?
熱門文章
更多 >>
